公司名称: 一匹黑马(沈阳)网络科技有限公司
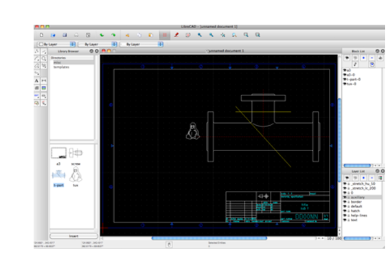
LibreCAD是一款主要应用在2D的CAD软件,LibreCAD电脑版可以帮助用户做好CAD内容,软件有着很多商业模版,可以在多种设计上帮助到用户,并且软件支持多种语言,可以适应各种系统,方便用户携带使用。
LibreCAD支持图层功能,用户可以轻松管理不同层级的图形元素,方便组织和编辑复杂的图纸,提供精准的绘图工具和坐标输入选项,帮助用户绘制高精度的设计图纸。
一款支持Windows、Linux和Mac系统的免费开源2D CAD软件。
它能处理DXF等格式图纸,并可导出为多种图片格式,具备基本绘图与编辑功能。
软件提供免安装版本,运行稳定,但功能和性能不及专业商业CAD软件。
它不原生支持DWG格式,且因许可问题已移除内置帮助文档,部分高级功能有限。
安全下载


